EMPLAZAMIENTO. Avenida Nuestra Señora del Camino, 15 Atalaya 06329 Badajoz.
ANTECEDENTES Y CONDICIONES DE PARTIDA. tras la visita al inmueble y toma de datos respectiva, se observan una serie de construcciones no legalizadas en la parte del patio, ordenándose su demolición. A continuación, se detalla el global de las demoliciones, incluyendo las citadas con anterioridad como aquellas que resultan necesarias para adaptar la vivienda -en su parte existente- al uso no discriminatorio de usuarios en silla de ruedas.
- Demolición, elemento a elemento, de cubierta ligera de chapa sobre perfiles metálicos.
- Demolición total y/o parcial, elemento a elemento, de muro de carga o pilastra.
- Demolición parcial y/o total, elemento a elemento, de cerramiento y/o tabiquería de fábrica de ladrillo o mampuesto.
- Demolición parcial, elemento a elemento, de muro de carga, cerramiento y/o tabiquería para apertura de huecos.
- Demolición, elemento a elemento, de escalera y/o peldañeado.
- Demolición, elemento a elemento, de solera de hormigón de espesor variable.
- Demolición, elemento a elemento, de solería de terrazo o grés interior o exterior.
- Demolición, elemento a elemento, de alicatado de cuartos húmedos y/o patio.
- Levantado de carpintería o cerrajería de cualquier material, interior o exterior.
- Levantado de aparatos sanitarios y accesorios.
- Demolición, elemento a elemento, de falsos techos no registrables, con medios manuales sin deteriorar los elementos constructivos a los que se sujeta.
Se seccionarán los bajantes que sirven de recogida a la cubierta de la vivienda, adosados a su fachada interior con vertido hacia patio, con recuperación.
Se levantarán las instalaciones de fontanería y saneamiento existentes en la zona de patio, aseo y lavadero, previo visto bueno de la Dirección Facultativa.
Se levantarán las instalaciones existentes que se vean afectadas por la intervención (depósito de agua, antena TV, tubos de ventilación, puntos de luz, puntos de abastecimiento etc), con recuperación.
Se levantará el tramo de barandilla de la escalera interior de la vivienda que se vea afectado por la demolición del tabique, con recuperación.
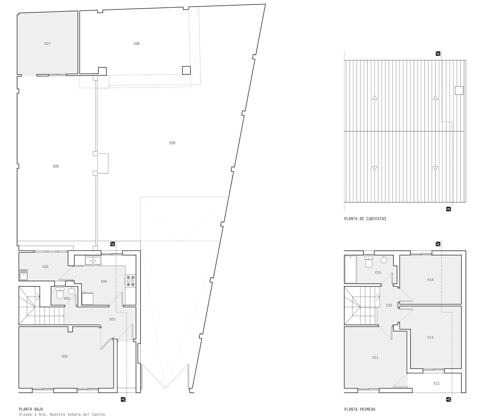
ENTORNO FÍSICO. La parcela de referencia forma parte de una promoción de 8 VPP adosadas, distribuidas en cuatro parcelas. Su fachada principal tiene orientación noreste a Avenida Nuestra Señora del Camino.
El entorno en el que se sitúa la finca urbana objeto del proyecto es una zona de relativa nueva construcción, caracterizada por la presencia de viviendas unifamiliares de PB+1. El uso mayoritario de a zona es residencial.
ESTADO DE LA VIVIENDA. El estado de conservación de la infraestructura es bueno en general, salvo afecciones indetectables a simple vista.
La altura de suelo a la cara inferior del forjado superior es de 2,75 m.
La vivienda dispone de todas las acometidas y servicios necesarios.
La forma de la vivienda es regular.
La vivienda se encuentra a la cota de planta baja con relación a la rasante de la calle.
DESCRIPCIÓN DEL PROYECTO.
Se trata de un edificio de PB+1 que presenta fachada principal a la Avenida Nuestra Señora del Camino. La estructura vertical es de muros de carga de fábrica de ladrillo perforado. En la horizontal forjados unidireccionales de vigas semirresistentes o autorresistentes, bovedilla de hormigón y capa de compresión de hormigón y sus correspondientes armaduras de momentos negativos. Las cubiertas son inclinadas con cubrición de teja cerámica.
PROGRAMA DE NECESIDADES. El encargo que se recibe por parte de la propiedad para la redacción del presente proyecto es la ampliación y adaptación de la vivienda para una persona con movilidad reducida, siendo fruto de dicha ampliación la construcción de un dormitorio+baño que cumpla las exigencias establecidas a nivel estatal y autonómico en lo que a accesibilidad se refiere; de igual modo, se adaptará al uso no discriminatorio, siempre que técnicamente sea viable, el resto de dependencias de la planta baja.
USO CARACTERÍSTICO DEL EDIFICIO. El uso característico del edificio es residencial.
OTROS USOS PREVISTOS. No se contemplan.
RELACIÓN CON EL ENTORNO. La vivienda se encuentra situada dentro de la parcela nº15 y con fachada a Calle Nuestra Señora del Camino.

Situación y Emplazamiento.

Estado Actual. Plantas

Estado Actual. Alzados y Secciones

Estado Reformado. Plantas

Estado Reformado. Alzados y Secciones

































